Accueil
La Manufacture340
  • Présentation
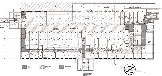
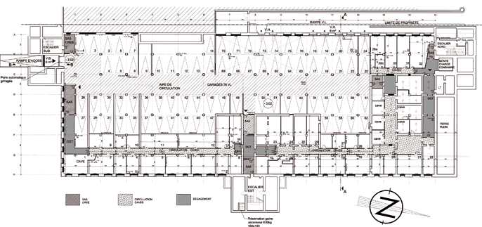
  • Les plans
    • Rez-de-chaussée
    • Étage
    • Combles
    • Cave
    • Coupe façade sud
    • Coupe façade nord
  • Photos
    • Tranche n°1 Avant
    • Tranche n°1 Après
    • Tranche n°2
Télécharger le plan
Les Lofts
  • Présentation
  • Plans
  • Photos
La situation
L'Historique
  • Historique

  • Philosophie

  • Planning des rĂ©alisations

On parle de nous
Nous contacter